Huajian Aluminium Industry Huajian Aluminium Industry
Утепленная каркасная навесная стена M80 или выше

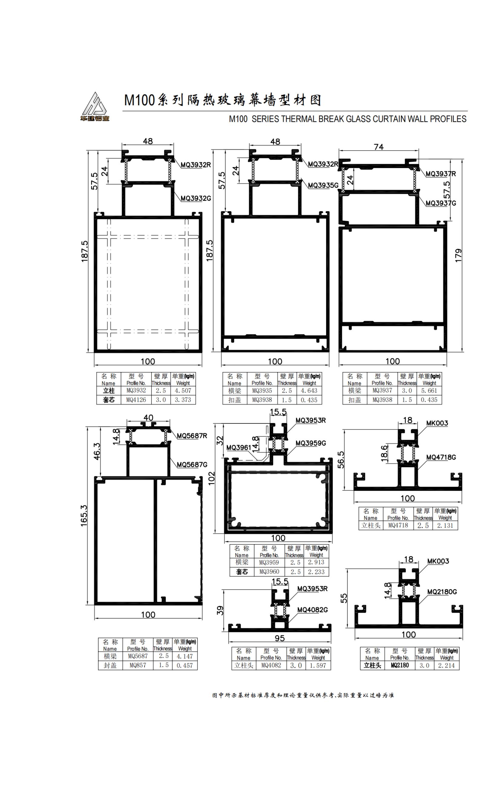
Профили стены занавес

Утепленная каркасная навесная стена M80 или выше

Преимущества продукта

  Система навесных фасадов Huajian использует собственные технологии, проводит независимые исследования и разработки, а также обладает полностью независимыми правами интеллектуальной собственности. Она отличается техническими, комплексными, удобными и эстетически привлекательными характеристиками, обеспечивая систематическую поставку, тестирование и оценку, поддержку программного обеспечения, инструментария, техническую поддержку, стандартизацию и продукты информационных технологий, а также предлагает высокоинтегрированный комплексный сервис закупок. Продукт соответствует соответствующим техническим требованиям национальных стандартов и обладает значительными энергосберегающими и экологическими характеристиками. 


  · Возможность изготовления арок, поверхностей и изделий сложной формы.

  · Высокая устойчивость к ветровой нагрузке, подходящая для строительства высотных зданий.

  · Фторуглеродное напыление и другие виды обработки поверхности обеспечивают долговечность и стойкость цвета.

  · Устойчивость к кислотным дождям, ультрафиолетовому излучению и особым условиям окружающей среды.

  · Изысканная обработка поверхности подчеркивает текстуру зданий.

Подробная информация о продукте

150+Имеется более 150 экструзионных линий общей производительностью от 600 до 10000 тонн.
80Годовая производственная мощность 800000 тонн
1313 лабораторий высокого стандарта
20+Группа имеет более чем 20-летний опыт разработки экструзии алюминия.

промышленное преимущество

  · Сырье изготовлено из алюминиевого прутка класса А, соответствующего национальному стандарту.

  ·Собственный центр пресс-форм с точностью до микрометра.

  ·150 экструзионных линий, экструдеры производительностью 10 000 тонн, высокая производственная мощность.

  ·Разнообразные виды обработки поверхности и передовые технологии.

  ·Мощные возможности для технических исследований и разработок, включая патенты и участие в разработке национальных стандартов.

  ·Гибкий и разнообразный дизайн.

  ·Сертификация по международным стандартам, поставляемая более чем в 50 стран и регионов.

  ·Поддержка крупных инженерных проектов.

  ·Комплексное обслуживание.

  ·Национальный испытательный центр, предоставляющий отчеты об испытаниях.

  ·Национальная оценка квалификации предприятий и почетные звания. Квалификация

  ·Экологическая сертификация

  ·25 лет опыта в разработке архитектурных профилей по индивидуальному заказу

Корпоративные преимущества

  Благодаря возможности разработки алюминиевых сплавов мы можем подбирать комбинации сплавов в соответствии с различными требованиями заказчиков к эксплуатационным характеристикам, что не только отвечает их потребностям в производительности и лёгкости продукции, но и обеспечивает экономию средств.

  Основываясь на требованиях к точности и производительности изделия, мы можем самостоятельно проектировать производственный маршрут, что значительно повышает производительность сварных деталей и обеспечивает размерную точность сборки.

  Возможность разрабатывать и модифицировать пресс-формы для экструзии и штамповки, снижая затраты на их разработку.

  Наличие автоматизированных линий экструзии и линий с ЧПУ снижает трудозатраты.

  Мы располагаем передовыми производственными линиями для обработки поверхности, такими как оксидирование, электрофорез и окраска, которые позволяют удовлетворить различные требования заказчиков и одновременно снизить инвестиционные затраты на оборудование.

  В настоящее время группа располагает более чем 150 экструзионными производственными линиями производительностью от 600 до 10 000 тонн с годовой производственной мощностью 800 000 тонн, из которых 40% имеют производительность более 2 000 тонн. Шестой завод, включающий в себя различные типы экструдеров производительностью от 500 до 10 000 тонн, в основном специализируется на производстве промышленных профилей и облегченных автомобильных профилей, обладая достаточной производственной мощностью для удовлетворения потребностей клиентов в экструзии различных размеров и спецификаций.

  Мы создали стандартизированный испытательный центр национального уровня, аккредитованный Национальной службой по аккредитации оценки соответствия Китая (CNAS) и Национальной службой по аккредитации оценки соответствия Китая (CMA); Группа совместно создала 13 лабораторий, отвечающих высоким стандартам, включая химическую аналитическую лабораторию, металлографическую лабораторию, лабораторию механических свойств, лабораторию физических свойств, лабораторию спектроскопии, лабораторию солевого тумана и лабораторию старения. Ключевые приборы и оборудование импортируются из таких стран, как США, Германия и Израиль.

  Опыт работы группы в области экструзии алюминия насчитывает более 20 лет. Многолетний опыт проверки и накопления позволил сформировать обширную базу данных, включая базы данных продукции, стандарты проектирования, спецификации анализа (DFMEA), PFMEA, планы контроля, данные валидации процесса и т. д.